PENTHOUSE APARTMENT WITH AMAZING CITY VIEWS

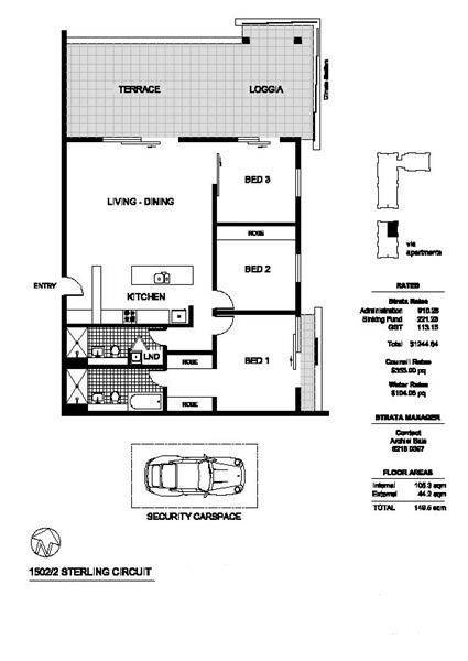
Penthouse style, three bedroom apartment capturing city skyline and village green views.

 Comprising of two double bedrooms both with built-in robes 3rd large bedroom and large expansive lounge and dining areas leading out on to north facing balcony, perfect for alfresco dining.

 Fully integrated kitchen with stainless steel appliances, gas cook top, dishwasher and pull out pantry.

 Additional features include:

- Extra large living spaces , perfect for families

- Well-appointed spacious kitchen with 5 Burner stainless steel gas stove with extra large 90cm oven and island benchtop

- Guest bathroom & ensuite off main

- Study area of living room/ can be used as guest room

- Internal laundry with dryer.

- Spacious terrace style balcony capturing the city skyline

- Underground car space

Being in The City Quarter Complex you will be able to enjoy the free, unlimited access to your choice of a 50 metre outdoor or 25m indoor pool and two gymnasiums. The complex also has 24 hour security, a Japanese restaurant and cafe. 

** please note, images shown are indicative only.

3 2 1
Available Leased
Address 2 Sterling Cct, Camperdown
Price DEPOSIT TAKEN
Property Type Rental
Property ID 4640
Category Apartment

Agent Details

Tammy (Rungnapa) Kanittanon photo

Tammy (Rungnapa) Kanittanon

0431 511 907
View Profile
Michelle Kilala photo

Michelle Kilala

0419 777 239
View Profile