Sold

SOLD BY CITY QUARTER AGENCY, CALL VICTOR MORRY MAIA ON 0407 330 033

Incredibly rare opportunity awaits to secure a truly unique apartment in the highly sought after “Aquilon” building.
This is a perfect opportunity to acquire an astute investment currently yielding an amazing 5.5%.

-Beautiful city skyline and lush district views
-Prized peaceful north east aspect
-Dual entry bathroom with bath and separate shower
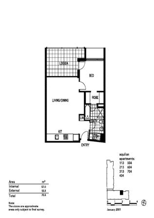
-Thoughtful floor plan to maximise internal/external space
-Loggia with shutters for privacy and comfort
-Massive 25m storage cage, rented for $170per month

Enjoy all the lifestyle benefits of an established estate, cafe, restaurants, 25 metre indoor pool and gym. 24/7 on site security.
Super peaceful and convenient location only moments to Glebe and Annandale Village, CBD, University, Broadway Shopping Centre, theatres, cafes and vibrant shopping.

You can have it all ! Call Victor Morry Maia on 0407 330 033 for an appointment.
1 1 1
Address 45, 4 Alexandra Drive, Camperdown
Price SOLD
Property Type Residential
Property ID 1642
Category Apartment

Agent Details

William Chen photo

William Chen

0430 026 436
View Profile