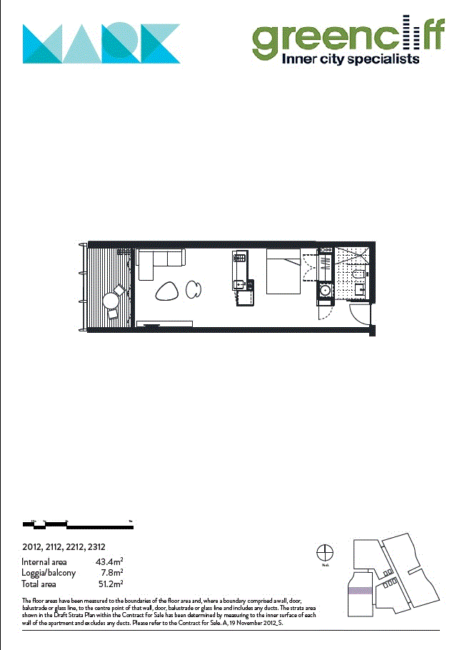
One Bed Suite With Extensive Park Views

Maximum Space and Privacy!
The interior benefits from a finish upgrade to marble and mirrored splash back in the bathroom and kitchen.
The space of this apartment revolves around a central pod separating the sleeping area from the living and dinning space.


Features
• Concierge
• Balcony
• Double glazed windows
• Gas
• Gym
• Intercom
• Internal Laundry
• Pets allowed
• Swimming Pool

1 1
Address 2312, 18 Park Lane, Chippendale
Price SOLD for $670,000
Property Type Residential
Property ID 3971
Category Apartment

Agent Details

William Chen photo

William Chen

0430 026 436
View Profile