Sold

SOLD FOR A RECORD PRICE ! CALL VICTOR MORRY MAIA ON 0407 330 033

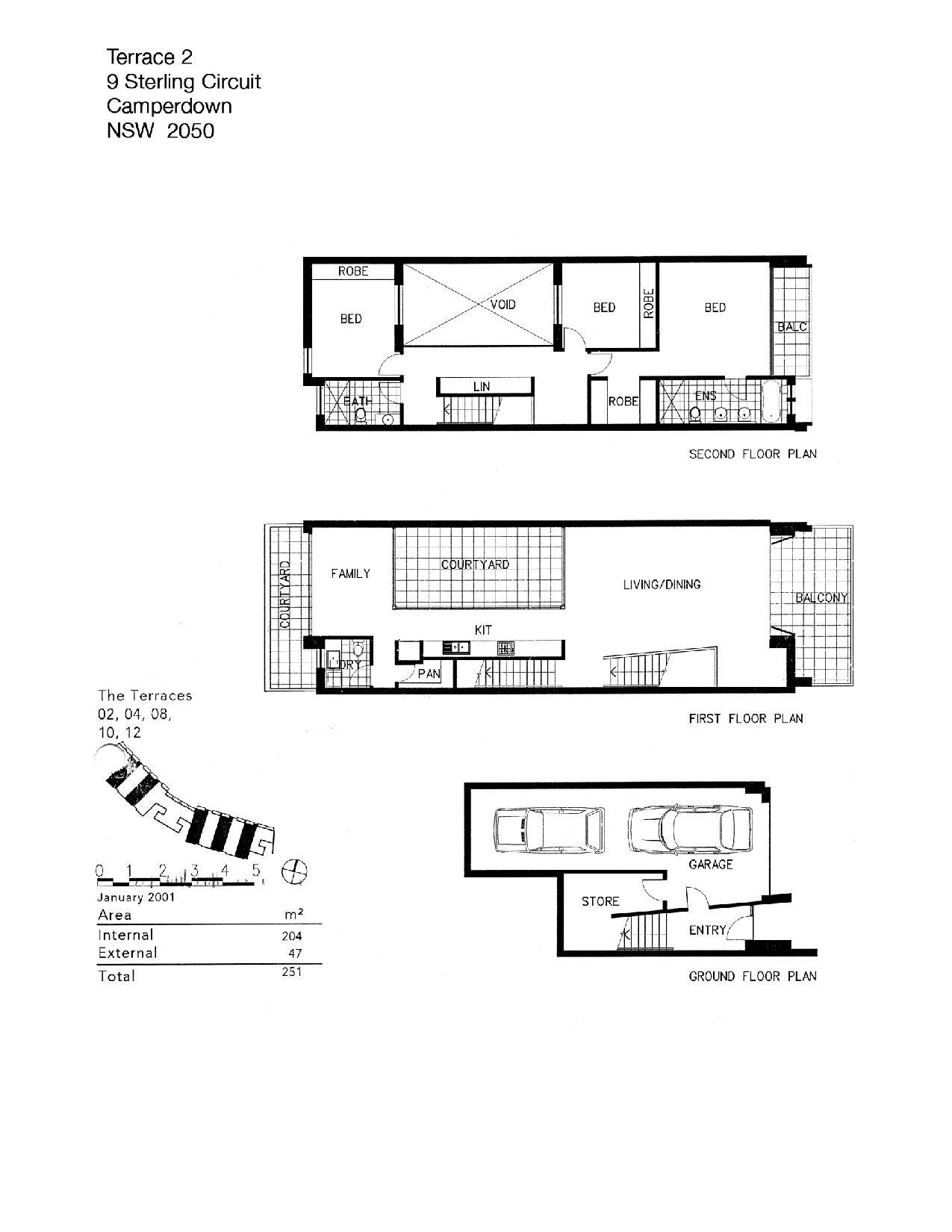
Generous designer home over three levels, light filled interiors, inspiring flexible indoor/outdoor living spaces, this immaculately presented unique residence is set in a super peaceful park side location moments away from village lifestyle.

Features include

Prized due north aspect, flowing open plan design
Internal atrium/terrace embracing kitchen and dining areas
Gourmet open plan kitchen with European appliances
Double bedrooms with built-in robes/ 2.5 bathrooms
Enclosable entertainer’s balcony flowing off living room
Double garage with internal access to the terrace.
Polished floors w/ built-in under floor heating
Storeroom, alarm security, rev cycle a/c
Landscaped private rear courtyard
Separate study area
Internal laundry

Enjoy all the lifestyle benefits of an established estate, cafe, restaurants, Choice of 25 meter indoor pool or 50m outdoor lap pool and two gyms .24/7 on-site security.

Located only moments to Glebe and Annandale Village, CBD, University, Broadway, Royal Prince Alfred Hospital, Shopping Centre, theatres, cafes and vibrant shopping.

This is an enviable home in and highly sought after location and will not last!

Outgoings
Rates $570 per annum
Water $579 per annum
Levy $1136.75 per quarter

Features

Balcony Courtyard Study
3 3 2
Address 2, 9 Sterling Circuit, Camperdown
Price SOLD
Property Type Residential
Property ID 1687
Category Townhouse

Agent Details

William Chen photo

William Chen

0430 026 436
View Profile